THE HEART OF THE HOME—BELOW GRADE
ABOUT THE PROJECT
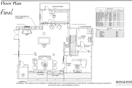
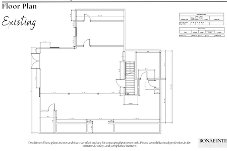
This fully finished basement transformation began as a completely unfinished space. Our goal was to design a cohesive layout that maximized functionality while creating a warm, inviting environment for both everyday family life and entertaining. We developed the full basement floor plan, carefully considering flow, zoning, and how each area would be used—from lounging and media viewing to games and hosting. The design features clearly defined yet connected spaces, including a comfortable family seating area, a game and recreation zone, and a custom bar area ideal for gatherings. Rich hardwood flooring, thoughtful lighting placement, and architectural details such as columns and built-ins add structure and visual interest throughout the space. We provided visual concepts and design direction to guide the build-out, ensuring the basement felt intentional, balanced, and cohesive. Once construction was complete, the clients added their finishing décor touches, which we reviewed and approved to maintain the overall design vision. The result is a cozy, functional basement designed for entertaining, relaxing, and making memories—a seamless extension of the home that feels both polished and personal.
GALLERY
